项目概况及租赁条件:
位于珠江琶醍啤酒文化创意艺术区,得天独厚的地理位置,与珠江新城、海心沙、猎德桥隔江遥相辉映;与广州塔、琶洲国际会展中心一脉相连;与琶洲人工智能与数字经济实验区紧密相连。
【地址】广州市海珠区磨碟沙大街118号
【交通】地铁:广州塔站A出口/万胜围站B.C出口转有轨电车琶醍站;公交:阅江西路西站(765路、779路、B7路)
【租金】办公:130元/平方
【管理费】办公:20元/平方
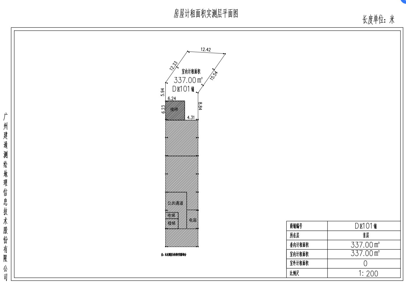
【计租面积】337平方
【使用率】65%
【递增】租金从第二年起,每年递增8%
【押金】三押一付
【合同】3年
【免租期】1个月








期待与您合作!
招商入驻:叶小姐 18011989481
场地租赁:叶小姐 18011989481





